Banner Image

Skills

  • MEP Engineering
  • Building Regulations
  • Civil Engineering
  • Construction
  • ETABS
  • Mep Design
  • Structural Analysis
  • Structural Engineering
  • Tekla Structures

Services

  • Civil and structural engineer

    $80/hr Starting at $800 Ongoing

    Dedicated Resource

    With over twelve years' experience in architectural design, I have exceptional skills and experience in planning, detailing, designing and coordinating projects both in the public and private sectors...

    Building RegulationsCivil EngineeringConstructionETABSMep Design

About

#1 Guru Recommended structural analyst, Revit expert "Invite To Job"

I DO NOT Farm out the work. I also do not operate and just operate the engineering softwares. If you want an accurate, professional and fully engineering work, you have found the right contractor.
When you hire me you can be confident that you will get a professional Designs and Structural analysis and calculation by or before your specified deadline, and you will not have to spend your valuable time going through and making corrections. You will get your drawings and reports in PDF and DWG format. All of my Structural calculations and designs are proofread for the highest level of accuracy and quality. I can guarantee the work you will receive will be 100% mine. Your satisfaction is my number one goal.

During 12 years' of experience as an Expert Architectural Designer & Structural engineer? I am capable to adapt myself to your ideas and structural standards. I work with my clients closely to ensure that I understand their requirements, and they are satisfied with the final outcome. Quality is my main focus as an Expert Architectural Designer & Structural engineer

Work Terms

I am available and could focus on your job 40-50 hours per week

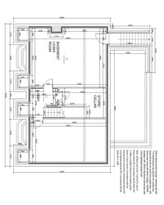
Attachments (Click to Preview)